Honsberg 品牌历史
在全球小口径流量计和流量开关等产品领域,Honsberg 一直是当之无愧的执牛耳者。在工业生产中,计量是工业生产的眼睛,流量计量是计量科学技术的组成部分之一,它与国民经济、国防建设、科学研究有密切的关系。而Honsberg则致力于为客户打造工业生产的“眼睛”。
通过对产品研发的不断投入,以及持续多年的积累,Honsberg从最初的默默无名到今天的行业领军者,Honsberg受到了客户的一致好评。
Honsberg 品牌现状
如今,Honsberg的产品被广泛应用到工业和过程控制的污水处理、采矿。涉及的领域有:造纸、印刷、空调、制药、化工、机械制造、压缩机、医学装置、通风设备、离心设备、炉设备、核电厂、排气。
此外,Honsberg的产品通过了ISO9001的严格认证,成为质量与品质的代名词。
Honsberg 产品经营范围
Honsberg 的产品主要有流量变送器、流量调节器、流量开关、流量显示器、温度变送器、压力变送器、压力开关、液位开关以及各种非标OEM等
Honsberg UR3K-……GK系列 产品描述:
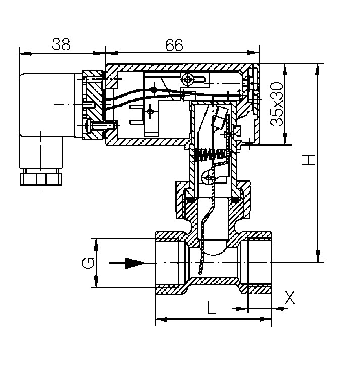
1、流量开关/Flow Meter
2、水平进水
用于介质为水的,带有可调节簧片开关的非接触式触发的机械式流量开关
3、应用场合:钢厂-液压站、钢厂-润滑站
4、货期:预计4-6周到手
Honsberg UR3K-……GK系列
选型问题:
|
1 |
Nominal width(口径) |
|
2 |
连接种类 |
|
3 |
连接材质 |
|
4 |
调节范围 |
Honsberg 选型实例:
|
选型实例 |
UR3K |
|
DN 10 - G ⅜ |
010 |
|
内螺纹 |
G |
|
不锈钢 |
K |
|
0,5 -
5,0 l/min |
050 |
Honsberg UR3K-……GK系列 常见型号:
|
UR3K-015GK050 |
|
UR3K-020GK065 |
|
UR3K-025GK085 |
|
UR3K-032GK150 |
|
UR3K-040GK270 |
Honsberg UR3K-……GK系列 产品图片:

